
Автор: WasD
3D Визуализация: Shewolf
Разработка велась на основе крупнейшей в Европе паркур площадки в парке Столетова в Минске (Беларусь). Когда я впервые оказался на ней, то давно забытое желание тренироваться снова загорелось внутри меня огнем. Это было очень странное чувство, которое я последний раз испытывал на <url="/articles/647-proekt-vorkaut-ploshhadki-antona-kuchumova-dlja">открытии площадки по моему проекту в Петрозаводске</url>. Я увидел площадку на которую реально хочется приходить снова и снова и выкладываться по полной. Это не надоевший набор однообразных турников на хомутах, это почти что произведение искусства.
Поэтому когда я вернулся в Москву, я понял, что нужно нарисовать этот проект, чтобы другие получили возможность увидеть его и реализовать у себя в городах. За такими игровыми площадками будущее! Да и стоят они в разы дешевле благодаря использованию бетонного покрытия, а не химической резиновой крошки.
План и Параметры площадки

Название: MINSK-II (Минск 2)
Площадь (min): 23х23 метров
Размер: Средняя/Район
Тип соединения: Современная
Диаметр перекладин: 32мм или 35мм
3D виды площадки








3D модель площадки - https://sketchfab.com/models/1a0483a617464d65a693151db0cdc295
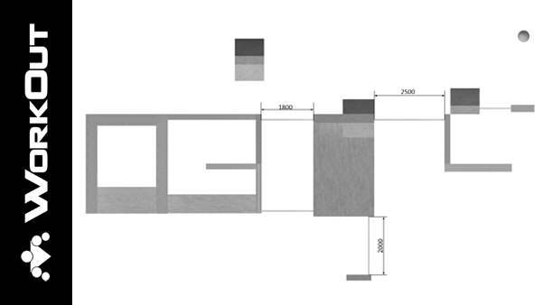
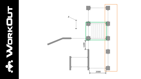
Конструкции и Размеры
Каскад перекладин

Купол

Комплекс Альфа


Комплекс Бета




Комплекс Гамма



Комплекс Дельта



Комплекс Эпсилон



Комплекс Дзета



Комплекс Эта




Комплекс Тета





Комплекс Йота



Комплекс Каппа



Комплекс Лямбда



Комплекс Мю






Комплекс Ню




Комплекс Кси




Гнутые брусья



Комментарии
2
Чтобы сохранить эту статью себе на страницу, нажмите на звездочку




